Old Administration Building (1894)

Note on the naming of this building.  The building was initially called Central Hall because it stood between North Hall (the original Orphans' Home, later also known as Central Hall) and South Hall, later known as the first Gilchrist Hall.  By 1905, as other buildings appeared on campus and simple geographical names made less sense, the name was changed to the Administration Building.  In the 1970s and early 1980s, it was commonly referred to as Old Ad to distinguish it from the new Administration Building, currently called Gilchrist Hall.

Headshot of J.W. Jarnagin in profile
Photograph of J.W. Jarnagin, Undated, in the University of Northern Iowa Photograph Collection, BOR Box 1, BOR 2- Individuals Jarnagin, J.W. Folder 37, #23, University Archives, Rod Library, University of Northern Iowa.

By 1892, the Iowa State Normal School needed a new building to provide additional classrooms, offices, library facilities, and literary society halls.  The original building on campus, Central Hall, and the second building, Gilchrist Hall, were badly overcrowded.  A parlor in Central Hall was converted into a classroom. President Seerley was teaching a class in the library.  Students had high hopes that the state would see the difficult situation and come to their rescue.  But the General Assembly decided that other matters had higher priority; there was no appropriation for a new building in the 1892 session.  To provide some immediate relief, the school discontinued its Boarding Department in the fall of 1892; space that had been devoted to on-campus student housing was converted to classrooms.  Consequently, the area around the Normal School boomed as entrepreneurs built rooming and boarding houses on College Hill.

At the Alumni Association meeting during Commencement Week in June 1893, President Seerley stated that the General Assembly had been generous to the Normal School in the past, and that he believed that the next Alumni Association meeting could be held in a new building.  J. W. Jarnagin, a member of the Normal School Board of Directors, also referred to the good will of the General Assembly, but urged the alumni to speak with their legislators and to make the case that the Normal School truly needed a new building. 

Early in 1894, a bill was introduced in the General Assembly to appropriate $75,000 for what was characterized as a "main building" at the Normal School.  In mid-February, a Visiting Committee from the legislature recommended a reduction in the appropriation to $50,000.  President Seerley seemed optimistic about the chances for the passage of the bill.  On March 2, 1894, the Appropriations Committees of both houses heard the requests of the Normal School.  The committees seemed favorably impressed.  The bill eventually did pass, but with only $30,000 for a new building.  There would be an additional $5000 for equipment and furnishings.  Construction would move at a relatively slow pace, because the General Assembly included a provision in the appropriation bill that no more than one half of the money could be drawn in any year.  President Seerley believed that the school could easily have used $75,000 to provide an adequate facility; however, he may well have been grateful that the legislature was able to find any money at all for the Normal School in the wake of the economic crisis now called the Panic of 1893.  W. A. Fulkerson, an architect from Cedar Rapids, would design the building.

Auditorium Building, now Lang Hall, 1901
Photograph of the Auditorium Building, now Lang Hall, 1901, in the University of Northern Iowa Photograph Collection, BUI Box 13, BUI 45.02 Lang Hall-Exterior Folder, #23, University Archives, Rod Library, University of Northern Iowa.

Almost immediately, student organizations began to press their case for their own "halls" in the new building.  At a time when entertainment and social activities were quite limited on the relatively isolated Normal School campus, student organizations, and especially the literary societies, provided a critical part of a student's education.  On the more serious side, these groups provided opportunities for students to participate in debate, public speaking, and parliamentary procedure.  But the societies also fielded athletic teams, went on hikes and picnics, and established a "safe" environment for the gentle dating customs of the day.  The literary societies, as well as the YMCA and the YWCA, believed that they needed their own meeting rooms rather than makeshift quarters in classrooms.  To the students, the new building looked as if it offered good prospects for society halls, and maybe even space for a large reception room.  In the end, they were disappointed in their wishes to have halls in the new building.  That would need to wait until the Auditorium Building appeared some years later.

Architectural drawing of the proposed building
Architectural drawing of the new building by architect W.A. Fulkerson, 1985. From page 345 of the March 2, 1895 edition of the Normal Eyte, https://indexuni.library.uni.edu/articles/120307.  

The October 13, 1894, issue of the student newspaper, the Normal Eyte, reported that excavation for the new building was well underway.  Saturday activities were canceled while new water pipes were extended to the site. The spirit of progress had clearly affected the editorial writer of the Normal Eyte in January 1895 when he said that the new building would likely push school enrollment over 1000, when it was completed.  What is more, the writer was looking forward to the NEXT new building: "The new building will no sooner be up than we will need another. 'May the good work go on.'"  The predictions for both increased enrollment and the need for yet another building proved correct.

The March 2, 1895, issue of the Normal Eyte presented a lengthy description and a nice engraving of the new building.

The editorial writer noted that construction would concentrate initially on the first and second stories; the basement and the third floor would not be completed in 1895.  The first floor would contain the library, measuring 95 X 50 feet, as well as offices for the President, the Secretary, and the Board.  The second floor would be used for classrooms.  When it was complete, the basement would house a gymnasium and a men's coat room.  The third floor would be used for natural sciences and a museum room.  There would be three entrances to the new building: on the east, south, and north.  A corridor would be built between Gilchrist Hall and the new building.  This corridor would provide efficient passage between the two buildings and would shelter students during inclement weather.  Building material, including the Farley limestone and Gladbrook brick, was already at the building site.  Work would begin in early spring.

Cartoon depicting President Seerley working on the construction of the new building
Student cartoon suggesting that even President Seerley was working on the new building, carrying a hod up a ladder, 1895. From page 568 of the June 19, 1895 edition of the Norman Eyte, https://indexuni.library.uni.edu/articles/122032. 

Work was well underway by early April 1895.  Later that month, President Seerley and some of the Board met to deliberate on a ventilation and heating system for the building.  By early June the brick work on the first story was nearing completion, but there were delays on other work due to slow deliveries of lumber.  The state was eager to get the work done.  A Normal Eyte cartoonist humorously pretended that even the faculty were involved with the building project.

An editorial writer for the Normal Eyte, in the wrap-up article in the last issue of the 1894-1895 school year, saw the new building as just a single indication of the growth and prosperity of the Normal School and the neighborhood surrounding it.  In 1890 there had been just five houses on Normal (now College) Street. By 1895, the neighborhood had grown to the extent that four hundred students found lodging within a half mile of the school. Faculty were building houses on the Hill, and three stores had opened. The editorial writer believed that the new building, with its improved library, laboratories, and classrooms, would spur further growth of the school and the neighborhood.

Photograph of President Seerley's office in the new building
Photograph of President Seerley’s new Office (right) and the secretary’s office (left), c. 1890s, in the University of Northern Iowa Photograph Collection, CAM Box 8, CAM 9.01 Albums Folder 6, #23, University Archives, Rod Library, University of Northern Iowa.

Enrollment in the fall of 1895 reached near 1000, a record level predicted just a few months earlier.  But the new building was not yet ready.  Consequently, President Seerley taught classes in the armory, Professor Arey taught in a laboratory, and other faculty members made similar accommodations.  The outside of the new building was nearly complete, but much interior work remained to be done.  The target date was January 1896.  By mid-September, the first floor was plastered and there was a possibility that the library and the offices could move into that level toward the end of October.  By early October the woodwork and mosaic flooring were being installed.  Already students were beginning to think about a name for the building:  some suggested that it be named Seerley Hall, in honor of the school's beloved President.  Finishing touches continued through October 1895.  The mosaic floor and the woodwork installation were completed.  A new vault, where cash and student records would be stored, was finished in the office area.

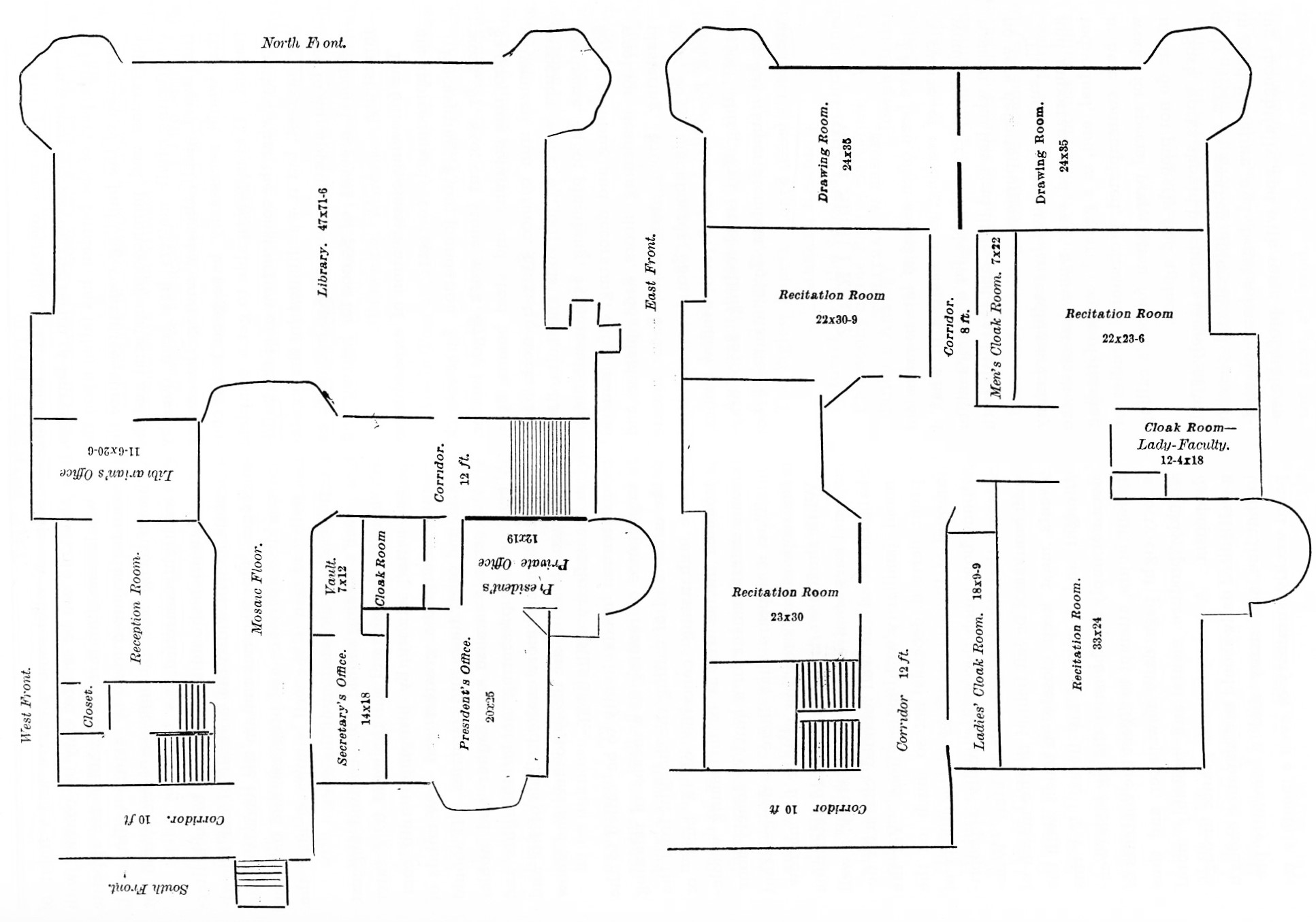
In the November 30, 1895, issue of the Normal Eyte, President Seerley wrote a long article, complete with floor plans, about the project entitled "The New Central Building".

Floor plans for "New Central Building"
Floor plans for the first and second stories of the Old Administration Building, November 1895. From page 3 of the November 30, 1895 edition of the Normal Eyte.

He described the architecture as "of a mixed type", with Greek, Roman, and Renaisance forms. It truly was a dictionary of late Victorian eclectic style.  There were Gothic arches, classical stonework, and even turrets topped with conical pinnacles and crenelations.  President Seerley praised the new ten foot wide two story corridor between Gilchrist Hall and the new building.  He believed that the corridor would help students "avoid much stair climbing and exposure" and would relieve pressure on narrow stairways at class change times.  The building was plastered with "Baker's patent plaster" over metal laths on the first and second stories.  The ceilings were of "steel stamped with artistic patterns". 

Students sitting in the Old Administration Building library
Photograph of students in the Administration Building library, 1903, in the University of Northern Iowa Photograph Collection, BUI Box 1, BUI 1.02 Library (Old Administration Building) Folder 4, #23, University Archives, Rod Library, University of Northern Iowa.
Headshot of James E. Robinson
Photograph of  James E. Robinson from A Century of Leadership and Service: A Centennial History of the University of Northern Iowa, volume 1 by Dr. William C. Lang, (Ann Arbor, MI: Edwards Brothers Inc., 1990), page 164.

The first and second stories were done and awaiting the shipment of furniture.  The third story would be ready by the beginning of school in September 1896.  The walls and ceilings were "frescoed in tints" by the George A. Smith Company: public offices in olive, private offices in lavender, the reception room in blue, the library in old pink, the halls in terra cotta, and the classrooms in a lighter terra cotta.  The floor of the first story main hall was mosaic tile.  Other halls were maple with pine floors in the classrooms.  Casement and base woodwork was oak, except that cherry was used in the library.  President Seerley saved special praise for the library.  This was the first time that the Normal School had had a space designed specifically for library purposes.  He praised the natural lighting, the space for bookstacks, and the work area for library staff.

There were six classrooms on the second story that would be used for courses in drawing, penmanship, English, political science, and didactics.  The third story, when it was completed, would be devoted to natural science, geography, and a museum.

Headshot of Edward Townsend in profile
Photograph of Board Treasurer Edward Townsend, undated, in the University of Northern Iowa Photograph Collection, BOR Box 2, BOR 2- Individuals Townsend, Edward Folder 44, #23, University Archives, Rod Library, University of Northern Iowa.

President Seerley took time to praise the Board, and especially Board Building Committee chair Edward Townsend, for their work on the project. He also lauded James E. Robinson, who supervised the construction work.  Mr. Robinson would later become the Superintendent of Buildings and Grounds at the school.

The President also presented an itemized list of building expenditures for the work that added up to about $30,000 for the building with an additional $5000 for a heating system and furnishings.  Several selected items will give a notion of the value of a dollar at that time: excavation, $300; painting and decorating, $865; plumbing, $579; and doors and windows, $900.

By December 1895, Professor Fullerton's music class and President Seerley's supervision class were meeting in the new building.  Architect W. A. Fulkerson visited the building that month.  The Board met there in December as well.  By mid-January 1896 President Seerley was enjoying the new furniture in his office.  Students were also enjoying the new library with its good lighting and ventilation.  Circulation and usage of the library were higher than in any previous term.  Students even appreciated the little things, such as the convenience of a new clock in the library.

Administration building complete
Photograph of the Old Administration Building (center), shortly after completion in 1896, Old Gilchrist Hall (left), and Central Hall (right), 1897, in the University of Northern Iowa Photograph Collection, BUI Box 1, BUI 1.01 Administration Building (Old) Folder 1, #23, University Archives, Rod Library, University of Northern Iowa.
Administration building library
Photograph of the Library taken from the corridor entrance, 1903, in the University of Northern Iowa Photograph Collection, BUI Box 1, BUI 1.02 Library (Old Administration Building) Folder 4, #23, University Archives, Rod Library, University of Northern Iowa.

Physical education students liked the new gymnasium facilities in the basement of the building.  Later, the school would install a ceiling over the gymnasium area so that the noise from classes there would not interfere with those studying in the library above it.

Two story corridor between the Administration Building and Gilchrist Hall
Photograph of the two-story corridor (center) between the Administration Building (right) and Gilchrist Hall (left), with smoke from the Power Plant chimney which stood about where the Maucker Union Expansion is now located, undated, in the University of Northern Iowa Photograph Collection, BUI Box 1, BUI 1.01 Administration Building (old) Folder 2, #23, University Archives, Rod Library, University of Northern Iowa.

The third story was indeed ready for students in September 1896.  The chemistry laboratory included four tables, with sinks and bottle racks, and gas hoods.  There was a physics laboratory with a demonstration table.  The natural science laboratory included tables with microscopes and dissecting tools.  The new museum room was equipped with appropriate cases and shelves.  The corridor connecting Gilchrist Hall and the new building soon featured a collection of reproductions of classical works of art and architecture.  This may well have been the first art gallery on campus.

When the new Auditorium Building, now Lang Hall, was nearing completion in 1901, a similar two-story corridor link was built between the Administration building and the Auditorium Building. This link became known as the Crossroads.

Crossroads between Administration Building and the Auditorium
Photograph of the old Crossroads building, undated, in the University of Northern Iowa Photograph Collection, BUI Box 7, BUI 24.01 Crossroads Folder 1, #23, University Archives, Rod Library, University of Northern Iowa.

The Crossroads was a student gathering point for many years.  It was a place where students picked up the newspaper, voted in school elections, and held casual conversations between class.  The Crossroads survived until the major renovation of Lang Hall in 1999-2001.  During that project, the old Crossroads was razed and a new structure, housing elevators and stairwells, was built in the same location.   

Old Crossroads removed
Photograph of Lang Hall after the removal of the Old Crossroads, April 1999. From page 1 of the April 30, 1999 edition of the Northern Iowan, https://indexuni.library.uni.edu/articles/26433. 

In 1901 the Normal School secured plaster casts from some of the sculptures on the Soldiers' and Sailors' Monument in Des Moines.  Two of the casts were mounted on the walls of the main hallway in the Administration Building.

One of the Civil War bas Reliefs
Photograph of one of the Civil War bas reliefs in Lang Hall, "The Return of the Soldiers"; Annie Wittenmyer, with children, at lower right, 1998, in the University of Northern Iowa Photograph Collection, BUI Box 13, BUI 45.01 Lang Hall- Interior Folder 1, #23, University Archives, Rod Library, University of Northern Iowa.

One of the casts, "The Return of the Soldiers", had special meaning for the Normal School.  In the lower right corner of this cast, a woman holds the hands of small children.  This woman was Annie Wittenmyer, who was instrumental in establishing Civil War orphans' homes in Iowa.  Central Hall, on the Normal School campus, had been built in 1869 as one of these homes.  After the home closed, the building became the first building of the Normal School.  These casts have been restored and are now mounted on the walls near the auditorium in Lang Hall.

Headshot of Benjamin Boardman
Photograph of Benjamin Boardman, undated, in the University of Northern Iowa Photograph Collection, FAC Box 5, FAC 3 Individuals Boardman, Benjamin Folder 18, #23, University Archives, Rod Library, University of Northern Iowa.

Over the years, as new buildings appeared on campus, many of the programs housed in the Administration Building moved to other facilities.  When the Gymnasium, now the Innovative Teaching and Technology Center, was completed in 1905, most physical education activities moved there.  When the new Library, now Seerley Hall, opened in 1911, the library collection and the museum moved there.  As the size and extent of the college administration grew, administrative offices as well as other programs spread out into the building.  The offices of the Dean of the Faculty, the Business Office, the Bureau of Research, the Curriculum Laboratory, and the Audio-Visual Center eventually were located in the Administration Building.

In 1923 there was a small fire in the ceiling of the Business Office.  Benjamin Boardman, the College Secretary and head of the Business Office, pulled down a portion of the metal ceiling and extinguished the fire, caused by an electrical short.  Little damage was done.

Headshot of President Latham
Photograph of President Orval Ray Latham, undated, in the University of Northern Iowa Photograph Collection, PRE Box 1, PRE-3 Latham Latham Portraits #1 (Smaller pictures) Folder 12, #23, University Archives, Rod Library, University of Northern Iowa.

In 1926 the south entrance to the building was enlarged to allow easier passage during class change time.  Also, Mr. Boardman's office was expanded so that the President's Office could be partitioned for greater privacy.  President Latham, in the spirit of greater efficiency, brought a few changes to the Administration Building during his time on campus.  Early in 1932, the Business Office moved into the south part of the main floor, and the President's Office was remodeled into a suite of rooms including a reception area, a board meeting room, an outer office, and a private office.

That same year the Placement Bureau expanded its quarters on the second floor.  As part of President Latham's plan to bring together departments that had been scattered across campus, in 1935, the commercial education faculty and classes were brought together on the third floor, and the mathematics faculty and classes occupied a portion of the second floor.

Professor I.H. Hart talking to students about the WWII college service flag
Photograph of Professor I.H. Hart talking to Virginia Nauman and Miriam Hansen about the World War II college service flag, 1943. From page 1 of the January 8, 1943 edition of the College Eye, https://indexuni.library.uni.edu/articles/152223. 

During World War II, the college service flag hung in the main corridor of the Administration Building.  Theta Theta Epsilon, the home economics honorary sorority, sewed the flag.  In 1960 a bronze plaque listing those college alumni who died during the war was mounted on the wall outside the President's Office.

Headshot of Registrar Marshall Beard
Photograph of Registrar Marshall Beard, 1940, in the University of Northern Iowa Photograph Collection, FAC Box 4, FAC 3 Individuals Beard, Marshall R. Folder 3, #23, University Archives, Rod Library, University of Northern Iowa. 

But the Administration Building was beginning to show its age.  As early as 1930, a College Eye editorial writer complained about its appearance.  By the middle 1930s, after forty years of hard use, the building was certainly a candidate for renovation.  However, those were the difficult years of the Great Depression.  The Depression years were followed by the World War II years, when just about all resources went toward the war effort.  When, in 1947, President Price outlined his postwar plans for developing the campus, the Administration Building was among the buildings deemed expendable.  He asked for a single building, costing about $772,000, to replace Central Hall, Gilchrist Hall, and the Administration Building.  The old buildings would then be demolished.  But funding did not appear for such a project.  Almost a decade later, Registrar Marshall Beard, who was beginning to take on the responsibilities of a campus planner, outlined a similar plan: the three old buildings were still slated for the wrecking ball.

In the fall of 1961, workers replaced pipes that fed heat to the Old Administration Building.  Students were advised to get out their red flannels on chilly days.  When the new Music Building, now Russell Hall, opened in 1962, the music faculty, some of whom had been located in the Old Administration Building, moved to their new home.  The guidance and counseling faculty, from the Department of Education and Psychology, moved in the vacated quarters in the Old Administration Building.  In the spring of 1965 the new Administration Building, now Gilchrist Hall, opened.  Over the spring the administrative offices that had been in the Old Administration Building moved into the new building.  These offices included the Registrar, the President, the Business Office, and College Relations.  At that point, the future of the Old Administration Building looked short and bleak. But the life of the building was prolonged, ironically, by the destruction of the other two old buildings. On July 22, 1965, Central Hall, the original orphans' home and the school's first building, was destroyed by fire.

And then on May 12, 1972, Old Gilchrist Hall burned.

Crowd gathered to watch the fire in the Old Gilchrist Hall
Photograph of a crowd watching the fire in the Old Gilchrist Hall from the courtyard by Maucker Union, May 12, 1972, in the University of Northern Iowa Photograph Collection, BUI Box 9, BUI 33.03 Gilchrist (Originally South Hall)- Fire (May 12, 1972) Folder 8, #23, University Archives, Rod Library, University of Northern Iowa.
Central Hall ruins after fire
Photograph of the ruins of Central Hall after the fire, from page 7 of the 1966 Old Gold (UNI Yearbooks), https://scholarworks.uni.edu/uni_yearbooks/67. 

With the prospect of the new Administration Building, the Old Administration Building had been allowed to deteriorate.  But, in the wake of fires that destroyed two large buildings, the college still needed the space in the old building.

Headshot of Leland Thomson
Photograph of Planning Director Leland Thomson from A Century of Leadership and Service: A Centennial History of the University of Northern Iowa, volume 2 by Dr. William C. Lang and Dr. Daryl Pendergraft (Ann Arbor, MI: Edwards Brothers Inc., 1990), page 409.

During the 1970s and 1980s, the Old Administration Building housed classrooms; offices for faculty in the Departments of Modern Language and Military Science; the campus radio station; print services; and an animal laboratory.  The Curriculum Laboratory was there until January 1973, when it moved to the new Education Center. At that same time a 2500 square foot space on the second floor was remodeled in a $26,000 project into studios, control rooms, and offices for radio and television. With two major building fires in the recent past, those who worked on the third story of the building occasionally voiced concern for their own safety. In 1979 the State Fire Marshall cited the Old Administration Building, as well as the Auditorium Building (now Lang Hall), for numerous violations and recommended phasing out the two old buildings in the near future.

Leland Thomson, Director of Facilities Planning, stated that renovation of the Old Administration Building would cost "hundreds of thousands of dollars". Later estimates showed that it would take $700,000 to bring the building up to minimal safety standards and $1.7 million to restore it completely. Mr. Thomson said that the building was definitely scheduled for demolition, but no firm date had been set. He stated that the building would be inspected every summer to determine the repairs necessary to keep it going for another year. Mr. Thomson said that the decision to demolish the building would be based on economics and safety.

Exterior of Old Administration Building looking shabby
Photograph of the Old Administration Building looking shabby, by Ray Kuehl, 1984, in the University of Northern Iowa Photograph, BUI Box 1, BUI 1.01 Administration Building (Old) Folder 2, #23, University Archives, Rod Library, University of Northern Iowa.

Over the years the university administration gradually reduced the numbers of occupants of the building, which continued to deteriorate. In January 1983 Mr. Thomson stated that the Old Administration Building was scheduled for demolition in the summer of 1983. This plan had been approved by the Board of Regents in October 1982.

There was an immediate reaction to this announcement from some students, faculty, and local citizens, who did not want this example of late nineteenth century eclectic architecture to be destroyed. Through the spring of 1983, a number of letters of protest appeared in the Northern Iowan. In February 1983, the Department of Earth Science, desperate for space, petitioned the University Faculty Senate to save and remodel the building. In March 1983 the Campus Planning Advisory Committee, despite hearing a personal plea from Earth Science Professor Kenneth DeNault, voted unanimously in favor of demolition. Shortly thereafter, the Faculty Senate endorsed the committee recommendation.

At its April 1983 meeting, the Board of Regents approved a $130,000 demolition budget. Regents Executive Secretary Wayne Richey stated in a memorandum: "We urge the university to proceed immediately to bring the demolition plans to fruition so that the building can be removed from the campus prior to the start of school this fall." The Board also specified that the work would include "the preservation of selected items of historical value and storage or display thereof." Saving historical material and relocating the Rat Laboratory took longer than expected. Consequently, demolition was delayed until early 1984. In January 1984, the Regents again delayed demolition for six months in order to give opponents of demolition time to raise the $2 million needed for renovation. Local historic preservation enthusiasts completed the paperwork so that, on January 18, 1984, the Old Administration Building could be placed on the National Register of Historic Places. But students narrowly defeated a referendum that would have required them to pay an extra $10 per semester for five years to finance a restoration project.

Flyer
Student flier in favor of saving the Old Administration Building

An appeal to the UNI Foundation was also rejected. Nancy Redfern, of the Cedar Falls Historical Society, appealed directly to the Regents to "mothball" the building for a year to allow more time to raise money for restoration, but that appeal failed as well.

In July 1984 the Board of Regents approved the building's demolition. Work began immediately to salvage the beautiful fireplace screen, clocks, doors, wainscoting, and other artifacts. Exterior demolition, by Associated Wrecking Company of Omaha, began shortly thereafter. In September of 1984, two men with a bulldozer razed the building.       

Administration building destruction
Photograph of a bulldozer preparing to begin demolition of the Old Administration Building, 1984. From page 1 of the September 7, 1984 edition of the Northern Iowan, https://indexuni.library.uni.edu/articles/44557. 
Ground after the demolition of the Old Administration Building
Photograph of the ground after the demolition of the Old Administration Building, March 1985, in the University of Northern Iowa Photograph Collection, BUI Box 1, BUI 1.01 Administration Building (old)- Demolition Folder 3, #23, University Archives, Rod Library, University of Northern Iowa.

Comments

The Old Administration Building would probably have been saved had the perceived need for demolition come just a few years later. By the late 1980s, just three or four years after the demolition, attitudes seem to have changed on the matter of demolition vs. renovation.

  • First, the calculation of monetary value changed; it began to look as if restoring an old building was less expensive than constructing a new building.
  • Second, there seemed to be a growing appreciation of, and perhaps even pride in, the aesthetic, historical, and intrinsic value of old buildings. People began to perceive that old buildings had their own kind of beauty. What is more, people learned that old buildings could be adapted to meet the needs of a modern educational institution. This matter was critical. As the last days of the Old Administration Building approached, many clamored to save it, but few showed interest in occupying it. Only later did campus leaders understand how modern technology and business methods could be integrated into the style and beauty of an old structure.
  • And, third, the demolition of the Old Administration Building came at the beginning of the Curris administration. Plans to demolish the building had been moving forward for well over thirty years when he arrived on campus. President Curris may have thought that he did not want to waste political capital trying to overturn a longstanding plan and a Board of Regents decision so early in his administration. That was truly unfortunate, because his work in overseeing the restoration of portions of the Auditorium Building and then Seerley Hall just a few years later shows what he could do when he was confident and in full command.                                                 
Color photograph of the Old Administration Building
Photograph of the Old Administration Building, 1983, in the University of Northern Iowa Photograph Collection, BUI Box 1, BUI 1.01 Administration Building (Old) Folder 1, #23, University Archives, Rod Library, University of Northern Iowa.

Compiled by Library Assistant Susan Witthoft; edited by University Archivist Gerald L. Peterson, June 1996; substantially revised by Gerald L. Peterson, with scanning by Library Assistant David Glime, August 2006; last updated, February 10, 2015 (GP); photos and captions updated by Graduate Assistant Eliza Mussmann February 1, 2023